İTÜ Denizcilik Fakültesi Tuzla Yerleşkesinde, ekonomik ömrünü tamamlayan ve deprem güvenliği gereklerini karşılamayan eski yatılılık binası yerine, modern bir eğitim binası yapılması planlanıyor. Avan projesi hazırlanan eğitim bloğunun tahmini proje bedeli 28 milyon lira civarında.
Halen Dekanlığın karşısında yer alan ve bir bölümünde yemekhane de bulunan eski yatılılık binasında, İTÜ İnşaat Fakültesi öğretim elemanlarınca 10 Mart 2016 tarihinde yapılan beton sınıfı değerlendirme sonucunda;
“Eski Yatılılık binasının mevcut hali ile yeterli güvenliğe sahip olmadığı, dolayısı ile bu binanın güçlendirilmesi veya ekonomik ömrünü tamamlandığı düşünülen binanın yıkılması uygun görülmüştür.” deniliyor.
Yemekhanenin deniz kıyısında yeni yerine taşınmasının planlandığı proje kapsamında, yatılılık binasının yıkılarak, yerine, toplam 12 bin metrekarelik oturumu olan modern bir eğitim kompleksi yapılması planlanıyor.
İTÜ Denizcilik Fakültesi'nin Öğrenci Yurdu, dönemin Ulaştırma, Denizcilik ve Haberleşme Bakanı Binali Yıldırım'ın hamiliğinde, Altay Altuğ ve Suay Umut gibi hayırsever denizciler ve mezunların ortak girişimleriyle yenilenmişti.
Daha sonra yeni idari binasına da kavuşan Fakülte, eğitim kompleksinin tamamlanmasını müteakiben şu anda eğitim verilen barakaların yıkılması ile de daha geniş bir yeşil alana kavuşacak.

















Eğitim Kompleksi şu bölümlerde oluşacak:
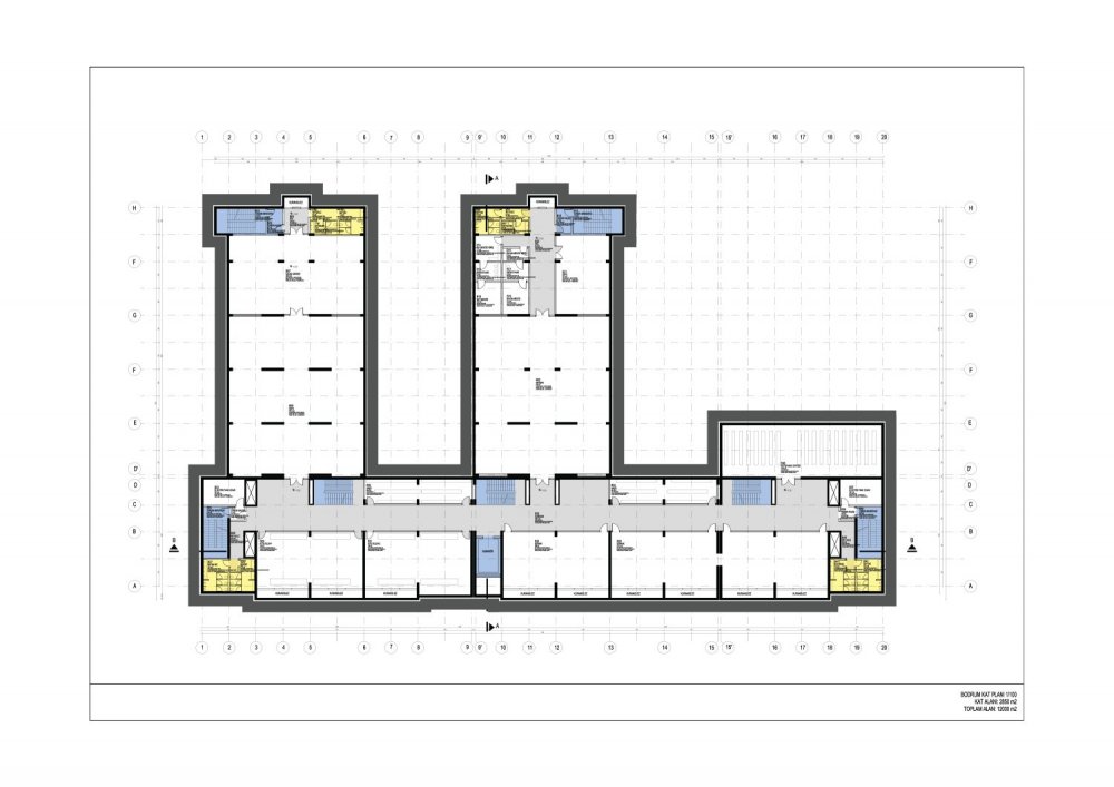
BODRUM KAT: (2.850,00 m2) ZEMİN KAT: ( 2.445,00 m2 )
- Sığınak - Öğrenci Yemekhanesi+Mutfak (200 kişi)
- Arşiv - 3 adet derslik
- Kazan dairesi - 4 Arş.Gör. odası
- Depo - 5 Adet Laboratuvar
- 2 Adet Atölye - 3 Adet Derslik (36 kişilik)
- Matbaa+Deposu - 14 Adet tuvalet (Bay+Bayan)
- Kütüphane deposu
- Mescit 2.KAT: (2.940,00 m2)
- 20 Adet tuvalet (Bay+Bayan) - Kütüphane
- Elektrik pano odası - Öğrenci Kantini
1.KAT: (2.940,00) m2) - 2 Adet Öğrenci Klubü
- Kütüphane (süreli yayınlar) - 3 Adet Laboratuvar
- 3 Adet Laboratuvar - 2Adet Derslik
- 11 Adet derslik - 1 Adet Kurul odası
- 4 Adet Arş.Gör.odası - 2 Adet açık ofis
- 1 küçük depo - 2 Öğr.Gör.odası
- 20 Adet tuvalet ( Bay+Bayan) - 3 Adet Arş.Gör.Odası
- 1 Adet Küçük depo
- 10 Adet tuvalet (Bay+Bayan)
3.KAT: (840,00 m2) BİNANIN TOPLAM ALANI:
- 5 Adet Öğr.Üyesi odası - Bodrum : 2.850,00 m2
- 4 Adet Arş.Gör.Odası - Zemin: 2.445,00 m2
- 1 Adet açık ofis - 1. Kat : 2.940,00 m2
- 1 Adet Öğrenci Klübü - 2. Kat: 2.940,00 m2
- 1 Teras+Servis - 3.Kat: 840,00 m2
TOPLAM: 12.015,00 m2
Yorumlar 1
Kalan Karakter: